Trang chủ>>Tin tức>>Góc tư vấn
Phân loại & cách xem sơ đồ mặt bằng
Sơ đồ mặt bằng được hiểu là bản vẽ phác họa tổng thể diện tích và bố cục không gian giúp doanh nghiệp dễ dàng hình dung. Trong đó, sơ đồ được phân thành nhiều loại và có cách đọc khác nhau. Chính vì thế mà trong bài viết hôm nay, Connect Land xin chia sẻ đến bạn một số thông tin cần thiết về cách phân loại và xem sơ đồ mặt bằng.
Xem thêm:
- Kinh nghiệm cho thuê mặt bằng kinh doanh chăm sóc thú cưng
- Thuê mặt bằng vỉa hè quận Bình Thạnh như thế nào?
- Các con đường sầm uất nhất quận 11

Sơ đồ mặt bằng là gì?
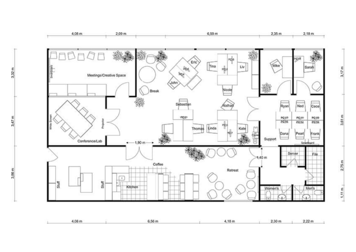
Sơ đồ mặt bằng (Floor layout) là bản vẽ 2 chiều mô tả tổng thể các cấu trúc của một không gian cụ thể trong các công trình xây dựng như nhà ở, văn phòng hoặc các khu vực công cộng,…Sơ đồ thể hiện các bộ cục theo tỷ lệ nhất định, giúp người xem hình dung rõ ràng về cách bố trí văn phòng, lối đi và các yếu tố khác trong không gian đó.
Dựa vào bản vẽ sơ đồ mặt bằng, doanh nghiệp và các kỹ sư thi công có thể hình dung tổng thể không gian thuê nhằm:
- Đảm bảo tính logic cho công trình xây dựng: sơ đồ giúp việc vận hành các dự án thiết kế được diễn ra một cách thuận lợi, phù hợp với nhu cầu sử dụng đúng thực tế của các chủ đầu tư.
- Giúp sắp xếp nội thất phù hợp: thông qua sơ đồ thì chủ doanh nghiệp hay kỹ sư thực thi dự án có thể nắm được vị trí và bố trí các trang thiết bị cũng như khu vực chức năng sao cho tối ưu không gian sử dụng nhất.
- Dễ dàng quản lý công trình: dựa vào sơ đồ giúp người xem có thể đánh giá các phương án xây dựng mặt bằng cho thuê và bố trí không gian sao cho hợp lý nhất.
- Cung cấp các thông số mặt bằng: sơ đồ thể hiện các thông tin quan trọng như tổng diện tích mặt bằng, tổng số các khu vực chức năng, lối đi trong tòa nhà, lối thoát hiểm, vị trí thang máy, độ dày tường hay đường ống vệ sinh,…
Phân loại sơ đồ mặt bằng
Tùy vào loại không gian và mục đích sử dụng mà sơ đồ được phân thành nhiều loại như sau:
- Bản vẽ tổng thể: là sơ đồ cung cấp cái nhìn bao quát về toàn bộ khu vực tòa nhà, khu đô thị, văn phòng, cửa hàng. Trên đó, thể hiện những chi tiết bố cục chung, vị trí tọa lạc, khu vực chức năng, lối đi riêng, kệ hàng và các tiện ích xung quanh.
- Bản vẽ tầng điển hình: là sơ đồ mô tả chi tiết cách bố trí của một tầng cụ thể trong tòa nhà với các thông tin về kích thước, vị trí các phòng, cửa sổ, cửa ra vào và chiều cao tầng.
- Bản vẽ công năng: là sơ đồ giúp xác định rõ các chức năng của từng khu vực trong một không gian nhất định như chức năng của văn phòng, chức năng của sảnh, sân thượng hay tầng trệt,…
- Bản vẽ nội thất: là sơ đồ thể hiện cách bố trí, sắp xếp đồ đạc và nội thất trong một không gian cụ thể.
- Bản vẽ căn hộ, chung cư: sơ đồ bố trí các không gian như phòng khách, phòng ngủ, bếp, nhà vệ sinh trong không gian căn hộ hay chung cư.
- Bản vẽ nhà xưởng: là sơ đồ mô tả các vị trí máy móc và dây chuyền sản xuất trong nhà xưởng.
- Bản vẽ văn phòng: là sơ đồ được thiết kế theo từng không gian văn phòng như văn phòng truyền thống, văn phòng mở hay làm việc chung (coworking).
- Bản vẽ nhà hàng: là sơ đồ mô tả các khu vực không gian ăn uống, quầy phục vụ, bếp chế biến, nhà vệ sinh, lối đi, cửa ra vào của tổng thể mặt bằng thuê.
Cách xem sơ đồ mặt bằng

Để đọc hiểu sơ đồ mặt bằng thì chủ doanh nghiệp cần hiểu rõ và nắm bắt bố cục theo các bước sau đây:
Bước 1: Đọc hiểu các ký hiệu, biểu tượng
- Nhận biết và đọc hiểu các ký hiệu, biểu tượng sơ đồ mặt bằng
- Xem xét các ký hiệu trên đang thể hiện điều gì để hiểu rõ về các khu vực được bố trí và sắp xếp được hiển thị trên bản vẽ.
Bước 2: Xác định phương hướng của bản vẽ
- Xác định hướng của bản vẽ sơ đồ mặt bằng là hướng nào
- Xem kỹ phương hướng của mũi tên trên bản vẽ để hiểu được vị trí, lối đi hay các yếu tố bố cục khác của không gian giúp hình dung và sắp xếp nội thất được tốt nhất.
Bước 3: Tìm hiểu các thông tin cần thiết
- Nắm bắt các thông số kích thước của các khu vực trên bản vẽ sơ đồ mặt bằng
- Nắm bắt các chức năng của các khu vực trên bản vẽ sơ đồ mặt bằng
- Nắm bắt các thông tin cần thiết khác đang được hiển thị trên sơ đồ.
Một số lưu ý khi đọc sơ đồ mặt bằng

Bên cạnh việc đọc hiểu sơ đồ bản vẽ thì người đọc cũng cần lưu ý một số điều quan trọng như sau:
- Tỷ lệ bản vẽ: tỷ lệ trên sơ đồ có thể tương đương với 1 mét trong thực tế, nên bạn cần phải nắm bắt yếu tố này để hiểu được kích thước thực tế của các khu vực trên layout nhằm có cái nhìn tổng quan nhất về bố cục và diện tích thực tế.
- Phương hướng bản vẽ: sơ đồ thường có hướng nhìn từ trên xuống, do đó việc xác định đúng hướng có thể giúp bạn hiểu được các hướng tọa lạc của các không gian trong đó.
- Các thông tin khác: một số thông tin khác như trang thiết bị máy móc, đồ nội thất,…đang được bố trí trong không gian cũng là điều mà bạn cần phải lưu ý khi xem sơ đồ nhằm nắm bắt thông tin được chuẩn xác nhất.
Kết luận
Sơ đồ mặt bằng hiện là công cụ quan trọng thiết yếu trong quy trình thiết kế, sắp xếp và quy hoạch không gian sao cho hợp lý. Do đó việc phân loại và đọc hiểu sơ đồ sẽ giúp bạn vận hành môi trường kinh doanh một cách tối ưu nhất.
Hy vọng bài viết trên sẽ mang đến cho bạn nhiều thông tin hữu ích. Hãy theo dõi connectland.vn để cập nhật thêm nhiều tin tức mới nhất nha.










